ASOOM新橋

情報更新日:2026年05月21日
物件名
ASOOM新橋
所在地
東京都港区新橋5-23-5
アクセス
都営三田線 御成門駅 徒歩4分
山手線 新橋駅 徒歩9分
都営浅草線 大門駅 徒歩10分
日比谷線 神谷町駅 徒歩11分
竣工年月
2025年05月
規模
地上14階 / 地下1階

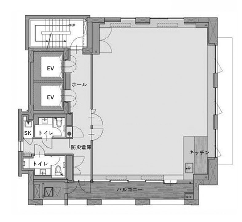
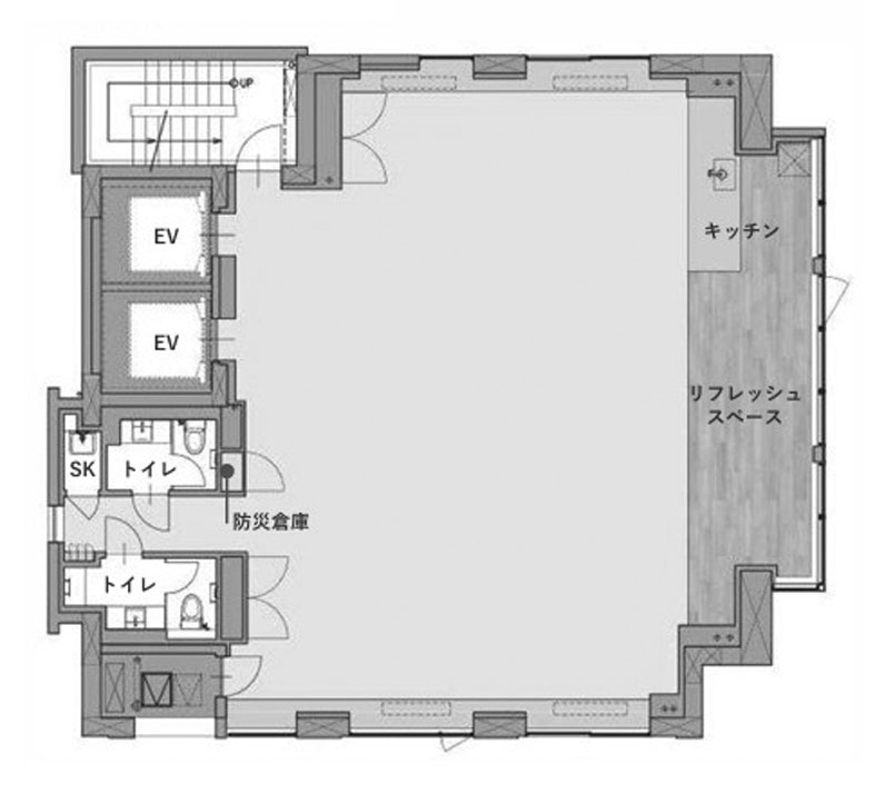
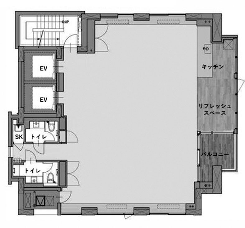
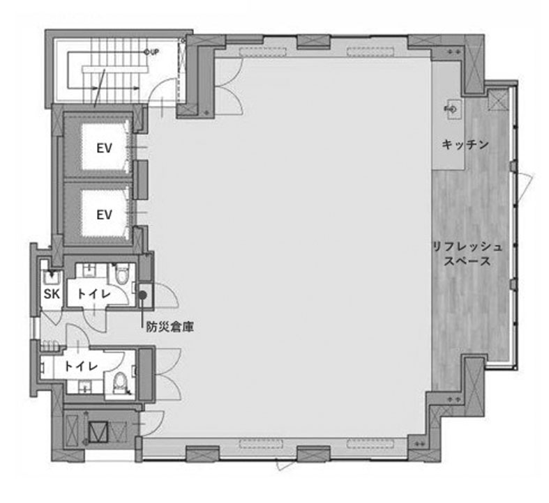
フォトギャラリー

間取り 区画 面積 賃料
(管理費含)
保証金・敷金 入居日 用途仕様
5 45.4
要問合せ 10ヶ月 即入居可能 事務所
OAフロアー
6 45.4
要問合せ 10ヶ月 即入居可能 事務所
OAフロアー
7 45.4
要問合せ 10ヶ月 即入居可能 事務所
OAフロアー
9 43.04
要問合せ 10ヶ月 即入居可能 事務所
OAフロアー
2 45.4
要問合せ 要問合せ 要問合せ 事務所
OAフロアー
3 43.09
要問合せ 要問合せ 要問合せ 事務所
OAフロアー
4 43.09
要問合せ 要問合せ 要問合せ 事務所
OAフロアー
8 45.4
要問合せ 要問合せ 要問合せ 事務所
OAフロアー
10 43.04
要問合せ 要問合せ 要問合せ 事務所
OAフロアー
11 38.19
要問合せ 要問合せ 要問合せ 事務所
OAフロアー
12 38.19
要問合せ 要問合せ 要問合せ 事務所
-
13 33.97
要問合せ 要問合せ 要問合せ 事務所
OAフロアー
14 33.97
要問合せ 要問合せ 要問合せ 事務所
OAフロアー

貸室面積合計 179.24

※複数の貸室合計も表示されます。

お電話でのお問い合わせ

03-6278-5609

平日9:00 ~ 18:00(土日祝除く)

STEP 1
お問い合わせ・ご相談
STEP 2
現地見学
STEP 3
ご契約・お手続き
STEP 4
引き渡し・運用サポート

近隣情報

郵便局
新橋四郵便局
東京都港区新橋4-30-6
銀行
三菱UFJ銀行 新橋支店
東京都港区新橋4-3-1

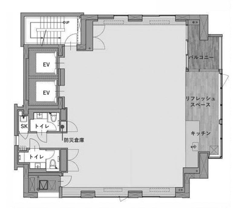
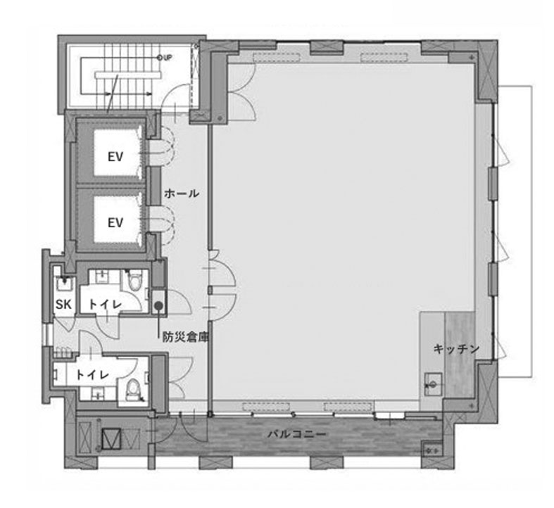
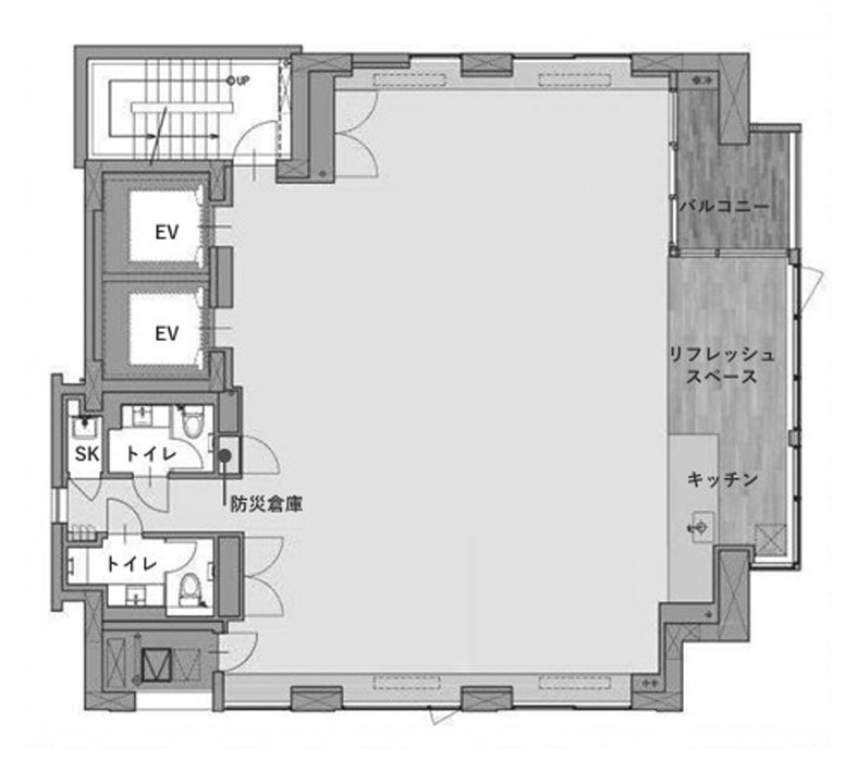
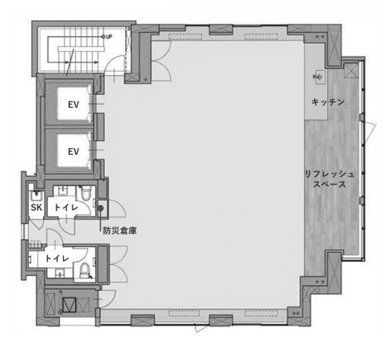
物件概要

基準階坪数
45.4坪
耐震
対応済み

※1981年6月1日以降に確認申請された建物は新耐震基準に該当しますが、当サイトでは原則として1982年6月1日以降に竣工した物件を新耐震として表記しています。

設備詳細

空調
個別空調
トイレ
男女別
エレベーター
2基

主な入居テナント

  • 株式会社ボスコ・テクノロジーズ
  • NexusCloud Systems
スタッフコメント
港区新橋五丁目に位置し、都営三田線御成門駅徒歩4分、新橋駅も徒歩圏内で利用できる立地です。日比谷通り付近にあり、周辺はオフィス街が広がっています。2025年5月竣工、地下1階地上14階建てのRC造で、近年竣工の建物ならではの整った構成が特徴です。基準階は長方形の執務形状で、屋上テラスや地下1階の共用ラウンジも設けられています。個別空調や男女別トイレ、エレベーター2基、機械警備を備え、24時間使用可能で、立地条件と設備面を踏まえた業務拠点として検討しやすいオフィスビルです。