VORT表参道maxim

情報更新日:2026年05月15日
物件名
VORT表参道maxim
所在地
東京都港区南青山5-9-2
アクセス
銀座線 表参道駅 徒歩1分
千代田線 表参道駅 徒歩1分
半蔵門線 表参道駅 徒歩1分
竣工年月
2024年10月
規模
地上9階

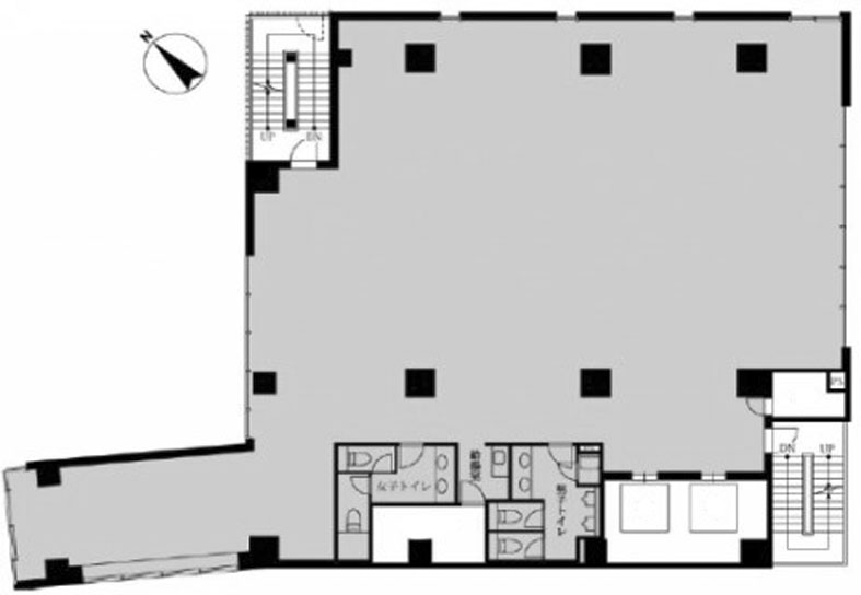
フォトギャラリー

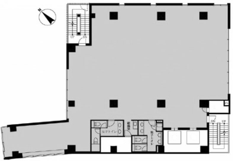
間取り 区画 面積 賃料
(管理費含)
保証金・敷金 入居日 用途仕様
6 92.67
要問合せ 5ヶ月 即入居可能 事務所・店舗
OAフロアー
7 92.67
要問合せ 5ヶ月 即入居可能 事務所・店舗
OAフロアー
9 92.67
要問合せ 5ヶ月 即入居可能 事務所・店舗
OAフロアー
2 92.22
要問合せ 要問合せ 要問合せ クリニック
-
3 92.7
要問合せ 要問合せ 要問合せ クリニック
-
4 92.7
要問合せ 要問合せ 要問合せ 事務所
-
5 92.7
要問合せ 要問合せ 要問合せ 事務所
-
8 92.67
要問合せ 要問合せ 要問合せ 事務所・店舗
-

貸室面積合計 278.01

※複数の貸室合計も表示されます。

お電話でのお問い合わせ

03-6278-5609

平日9:00 ~ 18:00(土日祝除く)

STEP 1
お問い合わせ・ご相談
STEP 2
現地見学
STEP 3
ご契約・お手続き
STEP 4
引き渡し・運用サポート

近隣情報

郵便局
渋谷青山通郵便局
東京都渋谷区神宮前5-52-2
銀行
三菱UFJ銀行 青山支店
東京都港区北青山3-6-1

物件概要

基準階坪数
92.67坪
耐震
対応済み

※1981年6月1日以降に確認申請された建物は新耐震基準に該当しますが、当サイトでは原則として1982年6月1日以降に竣工した物件を新耐震として表記しています。

設備詳細

空調
個別空調
トイレ
男女別
エレベーター
2基

主な入居テナント

  • TAKAZEN表参道店
スタッフコメント
表参道駅から徒歩1分と、駅距離の近さが際立つ立地です。複数路線が集まる駅を利用でき、都心各方面への移動を組み立てやすくなっています。2024年に竣工した地上9階建ての建物で、新しい計画にも取り入れやすい構成です。主要動線に近く、来訪や外出を含めた日常の動きも整理しやすくなります。立地条件と新しさを活かし、都心利用を前提に検討を進めやすい環境です。