VORT表参道east

情報更新日:2026年05月15日
物件名
VORT表参道east
所在地
東京都港区南青山3-7-1
アクセス
銀座線 表参道駅 徒歩7分
千代田線 表参道駅 徒歩7分
半蔵門線 表参道駅 徒歩7分
竣工年月
2025年06月
規模
地上5階

フォトギャラリー

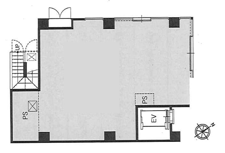
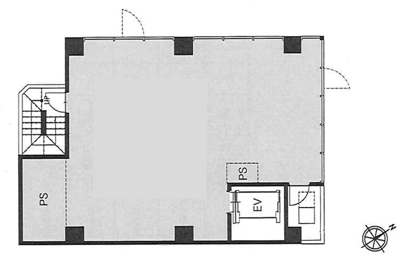
間取り 区画 面積 賃料
(管理費含)
保証金・敷金 入居日 用途仕様
4 26.31
要問合せ 10ヶ月 即入居可能 店舗
-
1 25.9
要問合せ 要問合せ 要問合せ 店舗
-
2 26.31
要問合せ 要問合せ 要問合せ 店舗
-
3 26.31
要問合せ 要問合せ 要問合せ 店舗
-
5 26.31
要問合せ 要問合せ 要問合せ 店舗
-

貸室面積合計 26.31

※複数の貸室合計も表示されます。

お電話でのお問い合わせ

03-6278-5609

平日9:00 ~ 18:00(土日祝除く)

STEP 1
お問い合わせ・ご相談
STEP 2
現地見学
STEP 3
ご契約・お手続き
STEP 4
引き渡し・運用サポート

近隣情報

郵便局
外苑前郵便局
東京都港区南青山2-27-23
銀行
三菱UFJ銀行 青山支店
東京都港区北青山3-6-1

物件概要

基準階坪数
26.31坪
耐震
対応済み

※1981年6月1日以降に確認申請された建物は新耐震基準に該当しますが、当サイトでは原則として1982年6月1日以降に竣工した物件を新耐震として表記しています。

設備詳細

空調
-
トイレ
-
エレベーター
-

主な入居テナント

  • 現在テナント情報はありません
スタッフコメント
港区南青山三丁目に位置し、東京メトロ銀座線・千代田線・半蔵門線が利用できる表参道駅徒歩7分の立地です。2025年6月竣工、地上5階建てのRC造で、ワンフロア・ワンテナント構成となっています。周辺の街並みに調和した、ガラス面の多い建物です。立地条件と建物特性を踏まえ、表参道エリアで独立性の高い利用を検討しやすいオフィスビルです。