VORT麹町大通り

情報更新日:2026年05月15日
物件名
VORT麹町大通り
所在地
東京都千代田区麹町4-2-11
アクセス
有楽町線 麹町駅 徒歩2分
総武線 四ツ谷駅 徒歩8分
半蔵門線 半蔵門駅 徒歩8分
南北線 永田町駅 徒歩8分
竣工年月
2024年03月
規模
地上13階

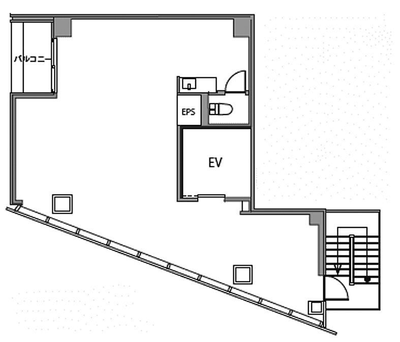
フォトギャラリー

間取り 区画 面積 賃料
(管理費含)
保証金・敷金 入居日 用途仕様
1 11.92
要問合せ 10ヶ月 2026年09月01日 店舗
-
6 17.59
要問合せ 5ヶ月 2026年09月01日 事務所
-
7 17.59
要問合せ 5ヶ月 即入居可能 事務所
-
8 17.59
要問合せ 5ヶ月 即入居可能 事務所
-
9 17.59
要問合せ 5ヶ月 即入居可能 事務所
-
10 17.53
要問合せ 5ヶ月 即入居可能 事務所
-
11 17.46
要問合せ 要問合せ 要問合せ 事務所
-
12 17.46
要問合せ 要問合せ 要問合せ 事務所
-

貸室面積合計 99.81

※複数の貸室合計も表示されます。

お電話でのお問い合わせ

03-6278-5609

平日9:00 ~ 18:00(土日祝除く)

STEP 1
お問い合わせ・ご相談
STEP 2
現地見学
STEP 3
ご契約・お手続き
STEP 4
引き渡し・運用サポート

近隣情報

郵便局
海事ビル内郵便局
東京都千代田区麹町4-5
銀行
三菱UFJ銀行 麹町支店
東京都千代田区麹町4-1

物件概要

基準階坪数
17.59坪
耐震
対応済み

※1981年6月1日以降に確認申請された建物は新耐震基準に該当しますが、当サイトでは原則として1982年6月1日以降に竣工した物件を新耐震として表記しています。

設備詳細

空調
-
トイレ
-
エレベーター
1基

主な入居テナント

  • 現在テナント情報はありません
スタッフコメント
東京メトロ有楽町線・麹町駅から徒歩2分の立地にあります。JR中央・総武線の四ツ谷駅や東京メトロ半蔵門線の半蔵門駅も徒歩圏内で、複数路線を利用できる点はアクセス良好といえます。2024年3月竣工、地上13階建てのオフィスビルです。立地条件と建物規模を踏まえ、都心部での業務拠点として検討しやすいオフィスビルです。