THE CITY 麻布十番 AZUR

情報更新日:2026年04月23日
物件名
THE CITY 麻布十番 AZUR
所在地
東京都港区麻布十番1-4-8
アクセス
南北線 麻布十番駅 徒歩1分
都営大江戸線 麻布十番駅 徒歩1分
竣工年月
2026年03月
規模
地上9階

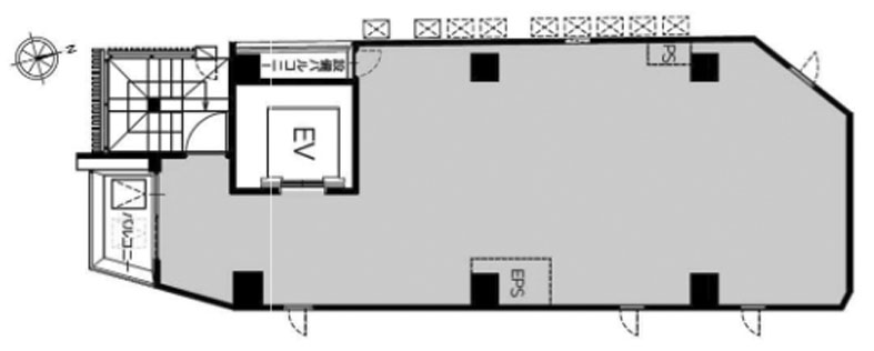
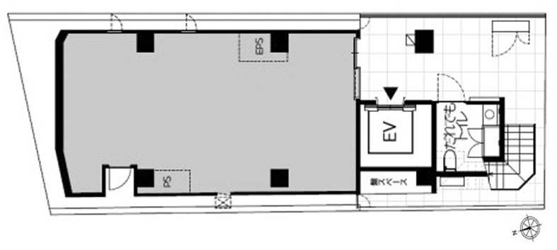
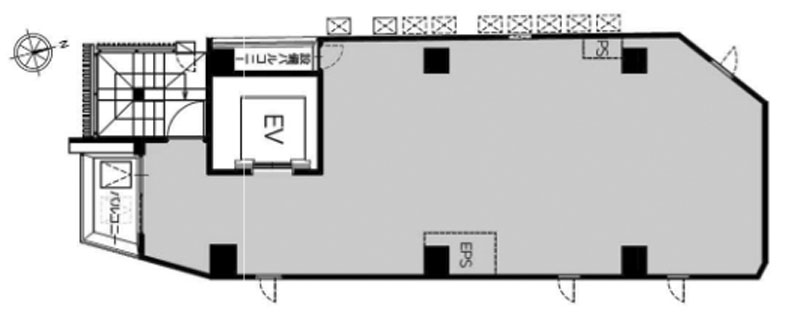
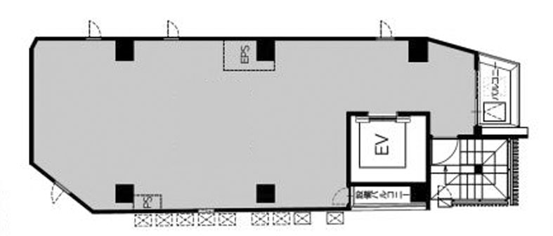
フォトギャラリー

間取り 区画 面積 賃料
(管理費含)
保証金・敷金 入居日 用途仕様
5 18.14
要問合せ 6ヶ月 要問合せ 店舗
-
6 18.14
要問合せ 10ヶ月 要問合せ 店舗
-
1 15.25
要問合せ 要問合せ 要問合せ 店舗
-
3 18.14
要問合せ 要問合せ 要問合せ 店舗
-
4 18.14
要問合せ 要問合せ 要問合せ 店舗
-
7 18.14
要問合せ 要問合せ 要問合せ 店舗
-
8 18.14
要問合せ 要問合せ 要問合せ 店舗
-
9 18.14
要問合せ 要問合せ 要問合せ 店舗
-

貸室面積合計 36.28

※複数の貸室合計も表示されます。

お電話でのお問い合わせ

03-6278-5609

平日9:00 ~ 18:00(土日祝除く)

STEP 1
お問い合わせ・ご相談
STEP 2
現地見学
STEP 3
ご契約・お手続き
STEP 4
引き渡し・運用サポート

近隣情報

郵便局
麻布十番郵便局
東京都港区麻布十番2-3-5
銀行
三菱UFJ銀行 麻布支店
東京都港区麻布十番1-10-3

物件概要

基準階坪数
18.14坪
耐震
対応済み

※1981年6月1日以降に確認申請された建物は新耐震基準に該当しますが、当サイトでは原則として1982年6月1日以降に竣工した物件を新耐震として表記しています。

設備詳細

空調
-
トイレ
-
エレベーター
1基

主な入居テナント

  • 現在テナント情報はありません
スタッフコメント
港区麻布十番1丁目に位置する「THE CITY 麻布十番 AZUR」は、東京メトロ南北線・都営大江戸線「麻布十番」駅から徒歩1分と、駅近の利便性が際立つ立地です。複数路線を利用でき、都心各方面への移動を前提とした動線を組み立てやすい点が評価できます。2026年3月竣工予定、地上9階建てのオフィスビルで、周辺は業務施設や来訪先が集まるエリアです。駅近立地を重視したオフィス利用を検討しやすい物件といえます。