文芸社新宿御苑ビル

情報更新日:2026年04月28日
物件名
文芸社新宿御苑ビル
所在地
東京都新宿区新宿1-11-7
アクセス
丸ノ内線 新宿御苑前駅 徒歩2分
竣工年月
1986年03月
規模
地上8階

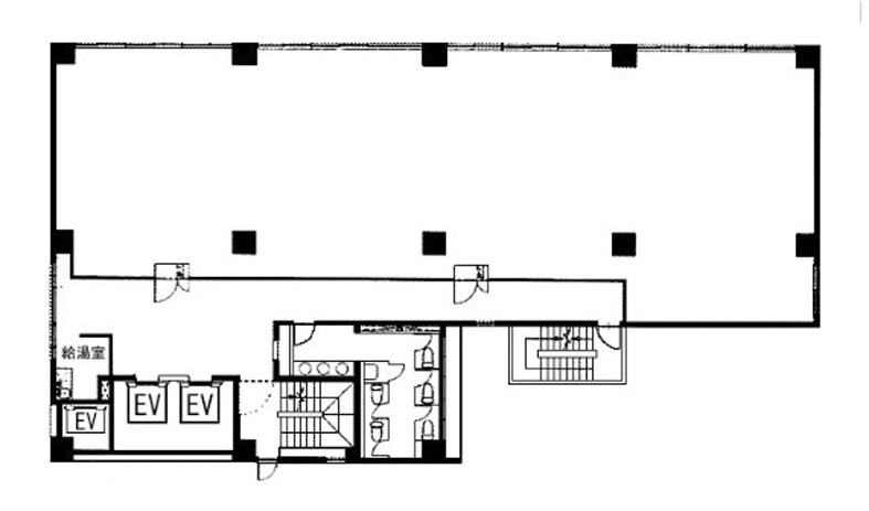
フォトギャラリー

間取り 区画 面積 賃料
(管理費含)
保証金・敷金 入居日 用途仕様
3 77.27
19,000円/坪
1,468,130円(税別)
10ヶ月 即入居可能 事務所
OAフロアー
4 77.27
19,000円/坪
1,468,130円(税別)
10ヶ月 即入居可能 事務所
OAフロアー
5 77.27
19,000円/坪
1,468,130円(税別)
10ヶ月 即入居可能 事務所
OAフロアー
6 77.27
19,000円/坪
1,468,130円(税別)
10ヶ月 即入居可能 事務所
OAフロアー
7 77.27
19,000円/坪
1,468,130円(税別)
10ヶ月 即入居可能 事務所
OAフロアー
1D 13.34
要問合せ 要問合せ 要問合せ 店舗
OAフロアー
3~7 386.35
要問合せ 要問合せ 要問合せ 事務所
OAフロアー

貸室面積合計 386.35

※複数の貸室合計も表示されます。

お電話でのお問い合わせ

03-6278-5609

平日9:00 ~ 18:00(土日祝除く)

STEP 1
お問い合わせ・ご相談
STEP 2
現地見学
STEP 3
ご契約・お手続き
STEP 4
引き渡し・運用サポート

近隣情報

郵便局
新宿花園郵便局
東京都新宿区新宿1-27-1
銀行
みずほ銀行 四谷支店
東京都新宿区四谷3-3-1

物件概要

基準階坪数
77.27坪
耐震
対応済み

※1981年6月1日以降に確認申請された建物は新耐震基準に該当しますが、当サイトでは原則として1982年6月1日以降に竣工した物件を新耐震として表記しています。

設備詳細

空調
個別空調
トイレ
隔階男女別
エレベーター
2基

主な入居テナント

  • 現在テナント情報はありません
スタッフコメント
新宿エリアに位置し、東京メトロ丸ノ内線新宿御苑前駅徒歩2分の立地にあります。建物は地上8階建てで、空調は個別空調を採用しています。トイレは隔階で男女別、エレベーターは2基設置されています。周辺にはオフィスや店舗が点在する環境です。駅至近のポジションを活かし、外出や来客対応を想定した際にも取り回しやすい物件です。