老川ビル

情報更新日:2026年05月13日
物件名
老川ビル
所在地
東京都千代田区神田須田町1-10
アクセス
丸ノ内線 淡路町駅 徒歩2分
都営新宿線 小川町駅 徒歩2分
銀座線 神田駅 徒歩2分
千代田線 新御茶ノ水駅 徒歩5分
山手線 神田駅 徒歩6分
総武線 秋葉原駅 徒歩6分
竣工年月
1992年10月
規模
地上9階

フォトギャラリー

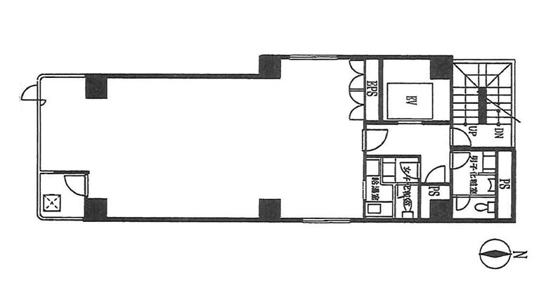
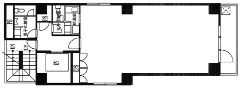
間取り 区画 面積 賃料
(管理費含)
保証金・敷金 入居日 用途仕様
1 11.48
21,000円/坪
241,080円(税別)
6ヶ月 即入居可能 事務所
タイルカーペット
3 24.69
15,000円/坪
370,350円(税別)
6ヶ月 即入居可能 事務所
タイルカーペット
4 24.69
要問合せ 要問合せ 要問合せ 事務所
タイルカーペット
5 24.69
要問合せ 要問合せ 要問合せ 事務所
-
6 22.61
要問合せ 要問合せ 要問合せ 事務所
タイルカーペット
7 19.9
要問合せ 要問合せ 要問合せ 事務所
-

貸室面積合計 36.17

※複数の貸室合計も表示されます。

お電話でのお問い合わせ

03-6278-5609

平日9:00 ~ 18:00(土日祝除く)

STEP 1
お問い合わせ・ご相談
STEP 2
現地見学
STEP 3
ご契約・お手続き
STEP 4
引き渡し・運用サポート

近隣情報

郵便局
神田駅前郵便局
東京都千代田区神田多町2-2-6
銀行
みずほ銀行 神田支店
東京都千代田区神田小川町1-1

物件概要

基準階坪数
24.69坪
耐震
対応済み

※1981年6月1日以降に確認申請された建物は新耐震基準に該当しますが、当サイトでは原則として1982年6月1日以降に竣工した物件を新耐震として表記しています。

設備詳細

空調
個別空調
トイレ
男女別
エレベーター
1基

主な入居テナント

  • 株式会社笑美面
  • 株式会社リバティア
  • 株式会社サヴィット
スタッフコメント
淡路町駅や小川町駅、神田駅から徒歩圏内に位置し、主要エリアへのアクセスに優れた立地です。周辺には飲食店や銀行が多く、働く人にとって利便性の高い環境が整っています。個別空調を備え、快適な室内環境を維持しやすい仕様です。男女別トイレも設置されており、日常の使い勝手にも配慮されています。街並みに馴染む、実用性の高いオフィスビルです。