MA SQUARE AKIHABARA

情報更新日:2026年05月25日
物件名
MA SQUARE AKIHABARA
所在地
東京都千代田区神田須田町2-1-1
アクセス
銀座線 神田駅 徒歩2分
都営新宿線 岩本町駅 徒歩2分
山手線 秋葉原駅 徒歩4分
山手線 神田駅 徒歩4分
丸ノ内線 淡路町駅 徒歩4分
千代田線 新御茶ノ水駅 徒歩6分
竣工年月
1990年07月
規模
地上8階 / 地下1階

フォトギャラリー

間取り 区画 面積 賃料
(管理費含)
保証金・敷金 入居日 用途仕様
3 39.98
24,000円/坪
959,520円(税別)
6ヶ月 即入居可能 事務所
OAフロアー
7 39.98
24,000円/坪
959,520円(税別)
6ヶ月 2026年07月01日 事務所
OAフロアー
1 22.88
要問合せ 要問合せ 要問合せ 事務所
OAフロアー
2 39.98
要問合せ 要問合せ 要問合せ 事務所
OAフロアー
2+6 79.96
要問合せ 要問合せ 要問合せ 事務所
OAフロアー
4 39.98
要問合せ 要問合せ 要問合せ 事務所
OAフロアー
5 39.98
要問合せ 要問合せ 要問合せ 事務所
OAフロアー
6 39.98
要問合せ 要問合せ 要問合せ 事務所
OAフロアー
8 39.98
要問合せ 要問合せ 要問合せ 事務所
OAフロアー

貸室面積合計 79.96

※複数の貸室合計も表示されます。

お電話でのお問い合わせ

03-6278-5609

平日9:00 ~ 18:00(土日祝除く)

STEP 1
お問い合わせ・ご相談
STEP 2
現地見学
STEP 3
ご契約・お手続き
STEP 4
引き渡し・運用サポート

近隣情報

郵便局
神田須田町郵便局
東京都千代田区神田須田町2-8
銀行
三菱UFJ銀行 神田駅前支店
東京都千代田区神田鍛冶町3-6-3

物件概要

基準階坪数
39.98坪
耐震
対応済み

※1981年6月1日以降に確認申請された建物は新耐震基準に該当しますが、当サイトでは原則として1982年6月1日以降に竣工した物件を新耐震として表記しています。

設備詳細

空調
個別空調
トイレ
男女共同
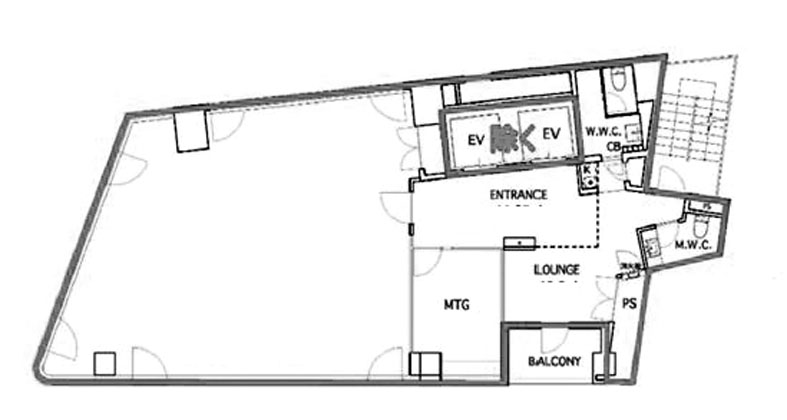
エレベーター
2基

主な入居テナント

  • 現在テナント情報はありません
スタッフコメント
神田駅および岩本町駅から徒歩2分、秋葉原駅も徒歩圏内にあり、アクセス良好な立地に位置しています。複数路線を使い分けやすく、都心各方面への移動を前提とした業務動線を組み立てやすい点が魅力です。空調は個別方式を採用しており、業務内容や時間帯に応じた室内環境の調整が可能で、エレベーターは2基設置されています。立地条件と設備構成を踏まえると、日常的な業務を安定して進めるための拠点として検討しやすいオフィスビルです。