| 間取り | 区画 | 面積 | 賃料 (管理費含) |
保証金・敷金 | 入居日 | 用途仕様 |
|---|---|---|---|---|---|---|
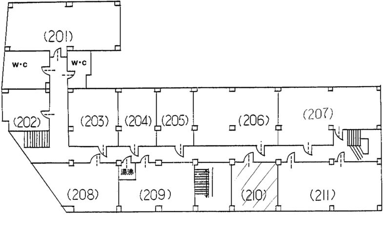
| 206 |
14.5坪 |
16,000円/坪 232,000円(税別) |
10ヶ月 | 即入居可能 |
事務所 タイルカーペット |
|
| 105 |
35.25坪 |
要問合せ | 要問合せ | 要問合せ |
店舗 タイルカーペット |
|
| 201 |
13.7坪 |
要問合せ | 要問合せ | 要問合せ |
事務所 タイルカーペット |
|
| 207 |
14.5坪 |
要問合せ | 要問合せ | 要問合せ |
事務所 タイルカーペット |
|
| 211 |
11.5坪 |
要問合せ | 要問合せ | 要問合せ |
事務所・店舗 タイルカーペット |
|
| 303 |
6.2坪 |
要問合せ | 要問合せ | 要問合せ |
事務所 タイルカーペット |
|
| 309 |
6.9坪 |
要問合せ | 要問合せ | 要問合せ |
事務所 タイルカーペット |
|
| 409 |
5.1坪 |
要問合せ | 要問合せ | 要問合せ |
事務所 タイルカーペット |
|
| 412 |
9.3坪 |
要問合せ | 要問合せ | 要問合せ |
事務所 タイルカーペット |
貸室面積合計 14.5坪
※複数の貸室合計も表示されます。
お電話でのお問い合わせ
03-6278-5609
平日9:00 ~ 18:00(土日祝除く)
STEP 1
お問い合わせ・ご相談
STEP 2
現地見学
STEP 3
ご契約・お手続き
STEP 4
引き渡し・運用サポート
近隣情報
- 郵便局
-
九段郵便局
東京都千代田区九段南1-4-6
- 銀行
-
みずほ銀行 九段支店
東京都千代田区神田神保町2-4
物件概要
- 耐震
- 未対応
※1981年6月1日以降に確認申請された建物は新耐震基準に該当しますが、当サイトでは原則として1982年6月1日以降に竣工した物件を新耐震として表記しています。
設備詳細
- 空調
- 個別空調
- トイレ
- 男女別
- エレベーター
- 1基
主な入居テナント
- 株式会社日本クラウディア
- 株式会社インフレクション
- 有限会社岡本健事務所
- 株式会社百間 企画室
スタッフコメント