新宿小川ビル

情報更新日:2026年05月19日
物件名
新宿小川ビル
所在地
東京都新宿区新宿1-4-8
アクセス
丸ノ内線 新宿御苑前駅 徒歩1分
都営新宿線 新宿三丁目駅 徒歩3分
竣工年月
1989年04月
規模
地上9階

フォトギャラリー

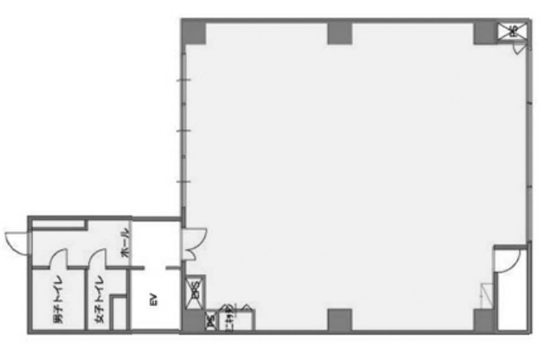
間取り 区画 面積 賃料
(管理費含)
保証金・敷金 入居日 用途仕様
7 44.4
要問合せ 10ヶ月 2026年07月 上旬 事務所
OAフロアー
2 44.4
要問合せ 要問合せ 要問合せ 事務所
OAフロアー
3 44.4
要問合せ 要問合せ 要問合せ 事務所
タイルカーペット
5 44.4
要問合せ 要問合せ 要問合せ 事務所
OAフロアー
6 44.4
要問合せ 要問合せ 要問合せ 事務所
OAフロアー

貸室面積合計 44.4

※複数の貸室合計も表示されます。

お電話でのお問い合わせ

03-6278-5609

平日9:00 ~ 18:00(土日祝除く)

STEP 1
お問い合わせ・ご相談
STEP 2
現地見学
STEP 3
ご契約・お手続き
STEP 4
引き渡し・運用サポート

近隣情報

郵便局
新宿一郵便局
東京都新宿区新宿1-14-6
銀行
三菱UFJ銀行 新宿支店
東京都新宿区新宿3-30-18

物件概要

基準階坪数
44.4坪
耐震
対応済み

※1981年6月1日以降に確認申請された建物は新耐震基準に該当しますが、当サイトでは原則として1982年6月1日以降に竣工した物件を新耐震として表記しています。

設備詳細

空調
個別空調
トイレ
男女別
エレベーター
1基

主な入居テナント

  • シューペルブリアン株式会社
  • 株式会社ユニマットリック
  • 株式会社ケイ・アイ・テック
  • エームサービス株式会社
  • E&Gアカデミー 事務局
スタッフコメント
「新宿小川ビル」は、東京メトロ丸ノ内線「新宿御苑前」駅徒歩1分、都営新宿線「新宿三丁目」駅徒歩3分と、駅近の利便性を備えた立地にあります。新宿エリアの中でもアクセス性に優れ、来客対応や外出の多い業務にも対応しやすい環境です。1989年竣工のRC造9階建で、個別空調や男女別トイレ、機械警備を導入し、24時間使用可能。ミラーガラス張りの外観が印象的で、石造りのエントランスが落ち着いた雰囲気を演出するオフィスビルです。