アイタウン・プラザ

情報更新日:2026年05月14日
物件名
アイタウン・プラザ
所在地
東京都新宿区西新宿6-21-1
アクセス
都営大江戸線 西新宿五丁目駅 徒歩7分
丸ノ内線 西新宿駅 徒歩8分
都営大江戸線 都庁前駅 徒歩8分
山手線 新宿駅 徒歩17分
竣工年月
1994年10月
規模
地上30階 / 地下4階

フォトギャラリー

間取り 区画 面積 賃料
(管理費含)
保証金・敷金 入居日 用途仕様
304 38.14
要問合せ 5ヶ月 即入居可能 事務所
タイルカーペット
106 15.55
要問合せ 要問合せ 要問合せ 事務所
-
106 21.5
要問合せ 要問合せ 要問合せ 事務所
タイルカーペット
2 49.91
要問合せ 要問合せ 要問合せ 事務所・店舗
-
203 49.91
要問合せ 要問合せ 要問合せ 事務所
-
205 32.37
要問合せ 要問合せ 要問合せ 事務所
タイルカーペット
206 26.7
要問合せ 要問合せ 要問合せ 事務所
-
211 13.31
要問合せ 要問合せ 要問合せ 事務所
-
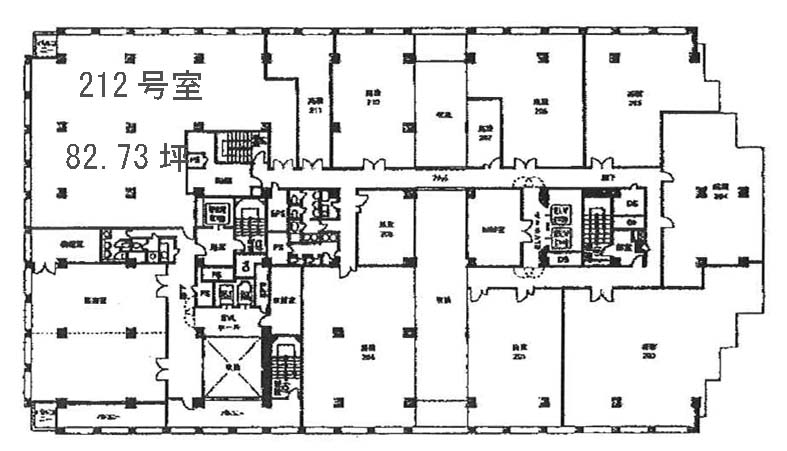
212 82.73
要問合せ 要問合せ 要問合せ 事務所
-
305 79.16
要問合せ 要問合せ 要問合せ 事務所
-
306 23.59
要問合せ 要問合せ 要問合せ 事務所
タイルカーペット

貸室面積合計 38.14

※複数の貸室合計も表示されます。

お電話でのお問い合わせ

03-6278-5609

平日9:00 ~ 18:00(土日祝除く)

STEP 1
お問い合わせ・ご相談
STEP 2
現地見学
STEP 3
ご契約・お手続き
STEP 4
引き渡し・運用サポート

近隣情報

郵便局
新宿アイタウン郵便局
東京都新宿区西新宿6-21-1
銀行
みずほ銀行 東京都庁出張所
東京都新宿区西新宿2-8-1

物件概要

耐震
対応済み

※1981年6月1日以降に確認申請された建物は新耐震基準に該当しますが、当サイトでは原則として1982年6月1日以降に竣工した物件を新耐震として表記しています。

設備詳細

空調
個別空調
トイレ
男女別
エレベーター
2基

主な入居テナント

  • 有限会社テックジャパン
  • ヒューベルサービス株式会社
  • フルリール株式会社
  • 株式会社エムシーサイト
スタッフコメント
都営大江戸線「西新宿五丁目」駅から徒歩7分、東京メトロ丸ノ内線「西新宿」駅・都庁前駅も徒歩圏内にある物件です。十二社通り沿いに立地する地下4階付30階建の超高層オフィスビルで、西新宿の高層ビル群の一角を担います。緑豊かな植栽を配したエントランスが印象的。個別空調・男女別トイレを備え、有人・機械警備を併用した24時間使用可能なハイグレードオフィスビルです。