根本ビル

情報更新日:2026年04月20日
物件名
根本ビル
所在地
東京都港区芝浦3-11-7
アクセス
山手線 田町駅 徒歩5分
竣工年月
1986年01月
規模
地上7階

フォトギャラリー

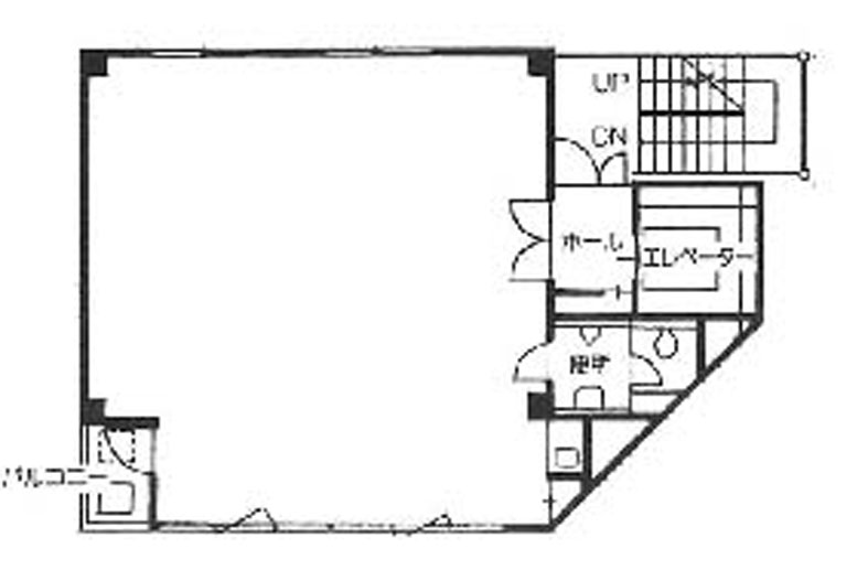
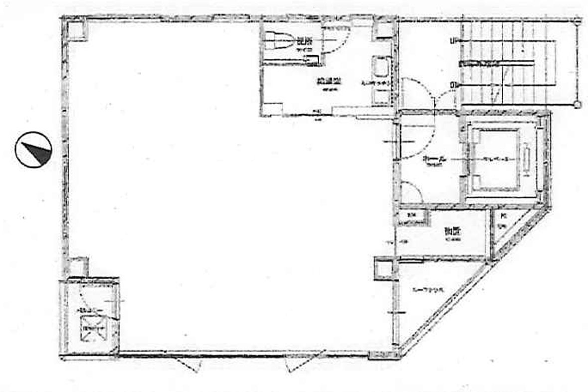
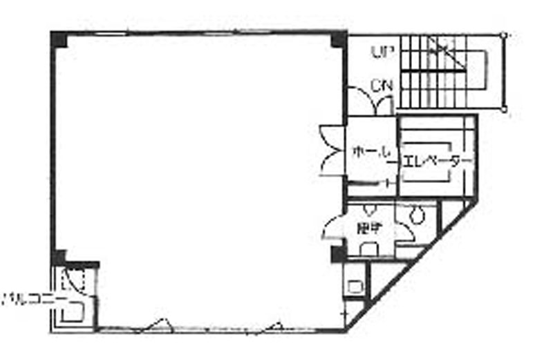
間取り 区画 面積 賃料
(管理費含)
保証金・敷金 入居日 用途仕様
2 22.23
15,500円/坪
344,565円(税別)
8ヶ月 2026年07月 上旬 事務所
タイルカーペット
3 22.23
要問合せ 要問合せ 要問合せ 事務所
タイルカーペット
4 22.23
要問合せ 要問合せ 要問合せ 事務所
タイルカーペット
5 22.23
要問合せ 要問合せ 要問合せ 事務所
タイルカーペット
6 22.23
要問合せ 要問合せ 要問合せ 事務所
タイルカーペット
7 20.05
要問合せ 要問合せ 要問合せ 事務所
タイルカーペット

貸室面積合計 22.23

※複数の貸室合計も表示されます。

お電話でのお問い合わせ

03-6278-5609

平日9:00 ~ 18:00(土日祝除く)

STEP 1
お問い合わせ・ご相談
STEP 2
現地見学
STEP 3
ご契約・お手続き
STEP 4
引き渡し・運用サポート

近隣情報

郵便局
港芝浦郵便局
東京都港区芝浦3-4-17
銀行
三菱UFJ銀行 田町支店
東京都港区芝5-33-11

物件概要

基準階坪数
22.23坪
耐震
対応済み

※1981年6月1日以降に確認申請された建物は新耐震基準に該当しますが、当サイトでは原則として1982年6月1日以降に竣工した物件を新耐震として表記しています。

設備詳細

空調
個別空調
トイレ
男女共同
エレベーター
1基

主な入居テナント

  • ジェイドトラスト株式会社
  • 医療法人社団美加未会 芝浦ホームクリニック
スタッフコメント
港区芝浦三丁目に位置し、JR山手線田町駅徒歩5分と通勤や来訪を想定しやすい立地です。旧海岸通り沿いにあり、周辺はオフィスビルが立ち並ぶ落ち着いた環境が広がっています。地上8階建てのSRC造で、個別空調やトイレ(共用)、エレベーター1基、機械警備を備え、24時間使用可能です。立地条件と基本設備を踏まえ、日常の業務運用を想定しやすいオフィスビルです。