130ビル

情報更新日:2026年04月15日
物件名
130ビル
所在地
東京都中央区日本橋小舟町2-1
アクセス
総武本線 新日本橋駅 徒歩4分
半蔵門線 三越前駅 徒歩4分
日比谷線 人形町駅 徒歩5分
都営浅草線 日本橋駅 徒歩6分
竣工年月
2001年03月
規模
地上8階

フォトギャラリー

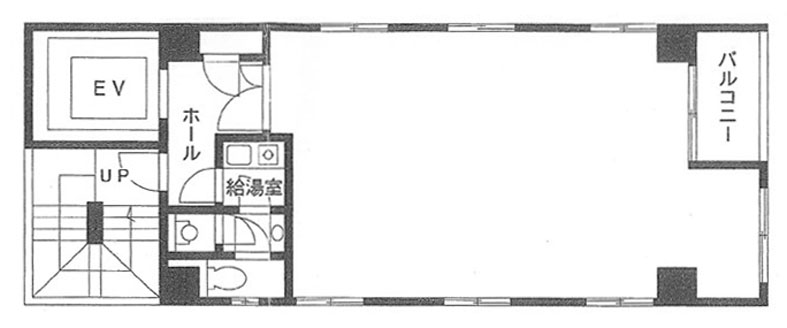
間取り 区画 面積 賃料
(管理費含)
保証金・敷金 入居日 用途仕様
4 14.52
19,000円/坪
275,880円(税別)
10ヶ月 2026年05月 中旬 事務所
-
2 14.52
要問合せ 要問合せ 要問合せ 事務所
-
6 14.52
要問合せ 要問合せ 要問合せ 事務所
-

貸室面積合計 14.52

※複数の貸室合計も表示されます。

お電話でのお問い合わせ

03-6278-5609

平日9:00 ~ 18:00(土日祝除く)

STEP 1
お問い合わせ・ご相談
STEP 2
現地見学
STEP 3
ご契約・お手続き
STEP 4
引き渡し・運用サポート

近隣情報

郵便局
日本橋小舟町郵便局
東京都中央区日本橋小舟町4-1
銀行
みずほ銀行 小舟町支店
東京都中央区日本橋小舟町8-1

物件概要

基準階坪数
14.52坪
耐震
対応済み

※1981年6月1日以降に確認申請された建物は新耐震基準に該当しますが、当サイトでは原則として1982年6月1日以降に竣工した物件を新耐震として表記しています。

設備詳細

空調
個別空調
トイレ
男女共同
エレベーター
1基

主な入居テナント

  • 現在テナント情報はありません
スタッフコメント
中央区日本橋小舟町に位置する「130ビル」は、2001年竣工、地上8階建てのオフィスビル。JR総武本線「新日本橋」駅・半蔵門線「三越前」駅がいずれも徒歩4分、日比谷線「人形町」駅や都営浅草線「日本橋」駅も徒歩圏内に位置し、交通アクセスに優れています。周辺はオフィスを中心に店舗が混在する比較的落ち着いたエリアです。昭和通りから少し入った場所に位置するワンフロア・ワンテナント仕様のコンパクトな物件で、個別空調、エレベーター、機械警備を備えています。