平和会館ビル

情報更新日:2026年05月11日
物件名
平和会館ビル
所在地
東京都港区芝1-4-9
アクセス
山手線 浜松町駅 徒歩5分
都営浅草線 大門駅 徒歩8分
竣工年月
1964年03月
規模
地上7階 / 地下1階

フォトギャラリー

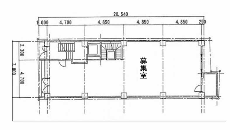
間取り 区画 面積 賃料
(管理費含)
保証金・敷金 入居日 用途仕様
3 37.79
14,000円/坪
529,060円(税別)
6ヶ月 即入居可能 事務所
OAフロアー
1 43.85
要問合せ 要問合せ 要問合せ 店舗
タイルカーペット
2 43.18
要問合せ 要問合せ 要問合せ 事務所・店舗
タイルカーペット
3 43.18
要問合せ 要問合せ 要問合せ 事務所・店舗
タイルカーペット

貸室面積合計 37.79

※複数の貸室合計も表示されます。

お電話でのお問い合わせ

03-6278-5609

平日9:00 ~ 18:00(土日祝除く)

STEP 1
お問い合わせ・ご相談
STEP 2
現地見学
STEP 3
ご契約・お手続き
STEP 4
引き渡し・運用サポート

近隣情報

郵便局
芝一郵便局
東京都港区芝1-11-15
銀行
みずほ銀行 浜松町支店
東京都港区浜松町2-4-1

物件概要

基準階坪数
43.18坪
耐震
未対応

※1981年6月1日以降に確認申請された建物は新耐震基準に該当しますが、当サイトでは原則として1982年6月1日以降に竣工した物件を新耐震として表記しています。

設備詳細

空調
個別空調
トイレ
男女別
エレベーター
1基

主な入居テナント

  • 株式会社きかんし 新橋メディアセンター
  • 株式会社アルファ 東京支店
  • シーフードレストラン香港
スタッフコメント
浜松町駅から徒歩5分と、通勤や外出時の動線を比較的組み立てやすい立地です。大門駅も徒歩圏内にあり、方面に応じて移動先を選びやすい環境となっています。地上7階建ての建物で、芝エリアの街並みに無理なく収まる規模です。個別空調を採用しており、業務内容に合わせた室内環境の調整が行いやすくなっています。周辺立地と建物条件を整理したうえで、日常業務の拠点として使い方を検討しやすい物件といえます。