2東洋海事ビル

情報更新日:2026年05月12日
物件名
2東洋海事ビル
所在地
東京都港区新橋4-24-8
アクセス
都営浅草線 新橋駅 徒歩5分
新交通ゆりかもめ 汐留駅 徒歩5分
山手線 新橋駅 徒歩6分
銀座線 新橋駅 徒歩7分
都営三田線 御成門駅 徒歩9分
竣工年月
1965年01月
規模
地上9階 / 地下2階

フォトギャラリー

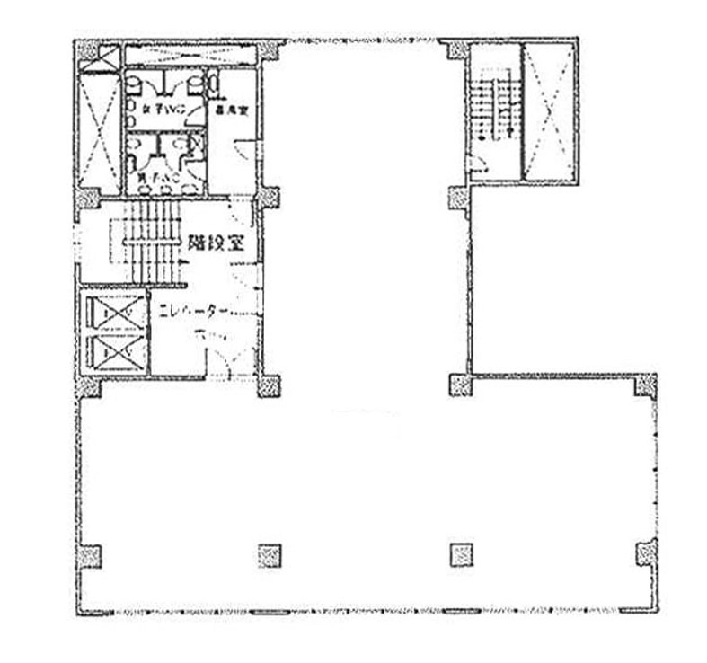
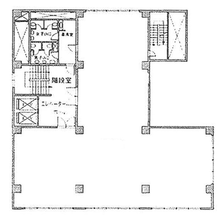
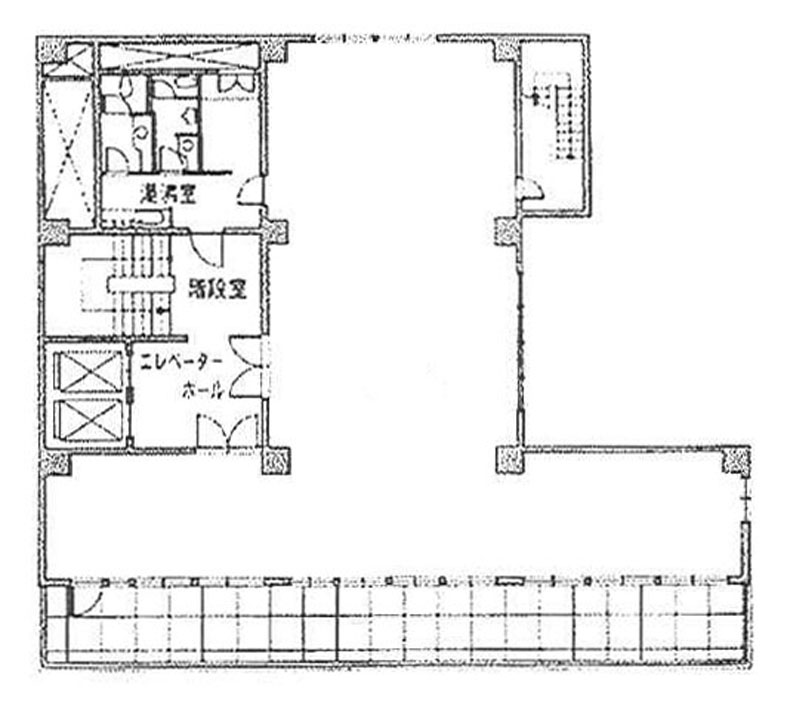
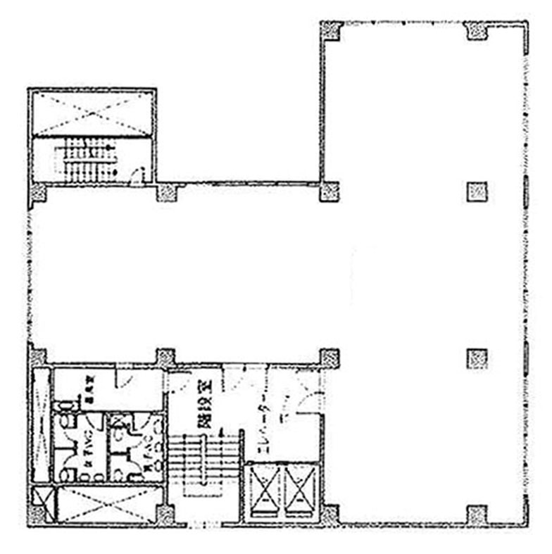
間取り 区画 面積 賃料
(管理費含)
保証金・敷金 入居日 用途仕様
B2 24
要問合せ 要問合せ 要問合せ 事務所
OAフロアー
1 75.3
要問合せ 要問合せ 即入居可能 事務所
OAフロアー
4 98
要問合せ 要問合せ 即入居可能 事務所
OAフロアー
6 98
要問合せ 要問合せ 即入居可能 事務所
OAフロアー
9 65
要問合せ 要問合せ 即入居可能 事務所
OAフロアー
2 98
要問合せ 要問合せ 要問合せ 事務所
OAフロアー
3 98
要問合せ 要問合せ 要問合せ 事務所
OAフロアー
5 98
要問合せ 要問合せ 要問合せ 事務所
OAフロアー
7 98
要問合せ 要問合せ 要問合せ 事務所
OAフロアー
8 87
要問合せ 要問合せ 要問合せ 事務所
OAフロアー

貸室面積合計 360.3

※複数の貸室合計も表示されます。

お電話でのお問い合わせ

03-6278-5609

平日9:00 ~ 18:00(土日祝除く)

STEP 1
お問い合わせ・ご相談
STEP 2
現地見学
STEP 3
ご契約・お手続き
STEP 4
引き渡し・運用サポート

近隣情報

郵便局
新橋四郵便局
東京都港区新橋4-30-6
銀行
三菱UFJ銀行 新橋支店
東京都港区新橋4-3-1

物件概要

基準階坪数
98坪
耐震
未対応

※1981年6月1日以降に確認申請された建物は新耐震基準に該当しますが、当サイトでは原則として1982年6月1日以降に竣工した物件を新耐震として表記しています。

設備詳細

空調
セントラル空調
トイレ
男女別
エレベーター
2基

主な入居テナント

  • TKP新橋汐留ビジネスセンター
スタッフコメント
港区新橋四丁目に位置し、都営浅草線新橋駅徒歩5分、汐留駅やJR・東京メトロ各線新橋駅も徒歩圏内で利用できる立地です。地下2階地上9階建てのSRC造で、複数路線を使い分けた移動を前提とした動線を組み立てやすい環境といえます。セントラル空調や男女別トイレ、エレベーター2基、有人・機械併用警備を備え、24時間使用可能です。交通利便性と管理体制の両面から、安定した業務運用を検討しやすいオフィスビルです。