フォロス岩本町ビル

情報更新日:2026年05月26日
物件名
フォロス岩本町ビル
所在地
東京都千代田区岩本町3-9-15
アクセス
都営新宿線 岩本町駅 徒歩2分
日比谷線 秋葉原駅 徒歩5分
山手線 秋葉原駅 徒歩8分
竣工年月
2004年08月
規模
地上10階

フォトギャラリー

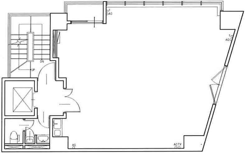
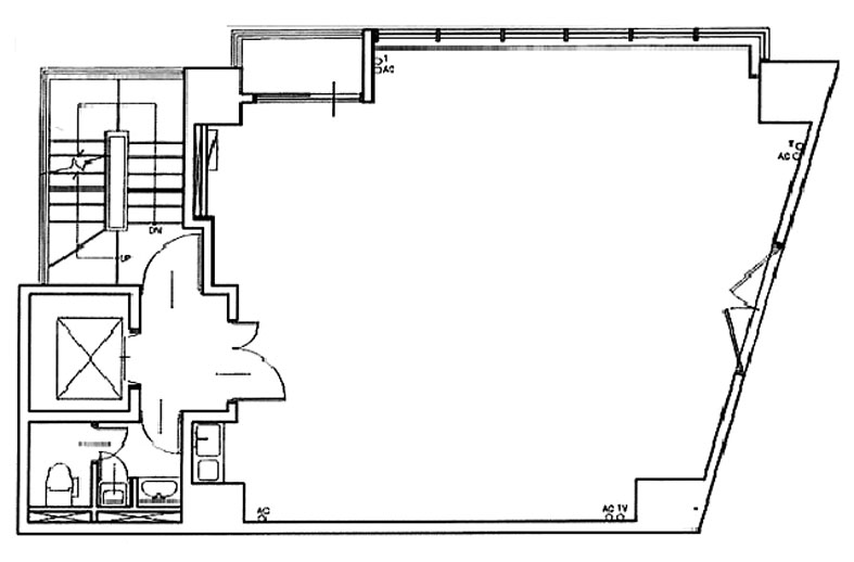
間取り 区画 面積 賃料
(管理費含)
保証金・敷金 入居日 用途仕様
3 19.13
要問合せ 10ヶ月 2026年11月01日 事務所
OAフロアー
1 16.72
要問合せ 要問合せ 要問合せ 事務所・店舗
OAフロアー
2 18.06
要問合せ 要問合せ 要問合せ 事務所
OAフロアー
4 19.13
要問合せ 要問合せ 要問合せ 事務所
OAフロアー
5 19.13
要問合せ 要問合せ 要問合せ 事務所
OAフロアー
6 19.13
要問合せ 要問合せ 要問合せ 事務所
OAフロアー
7 19.13
要問合せ 要問合せ 要問合せ 事務所
OAフロアー
8 19.13
要問合せ 要問合せ 要問合せ 事務所
OAフロアー
9 19.13
要問合せ 要問合せ 要問合せ 事務所
OAフロアー
10 19.13
要問合せ 要問合せ 要問合せ 事務所
OAフロアー

貸室面積合計 19.13

※複数の貸室合計も表示されます。

お電話でのお問い合わせ

03-6278-5609

平日9:00 ~ 18:00(土日祝除く)

STEP 1
お問い合わせ・ご相談
STEP 2
現地見学
STEP 3
ご契約・お手続き
STEP 4
引き渡し・運用サポート

近隣情報

郵便局
東神田郵便局
東京都千代田区東神田2-4-5
銀行
三菱UFJ銀行 神田駅前支店
東京都千代田区神田鍛冶町3-6-3

物件概要

基準階坪数
19.13坪
耐震
対応済み

※1981年6月1日以降に確認申請された建物は新耐震基準に該当しますが、当サイトでは原則として1982年6月1日以降に竣工した物件を新耐震として表記しています。

設備詳細

空調
個別空調
トイレ
隔階男女別
エレベーター
1基

主な入居テナント

  • 株式会社ライブネス
スタッフコメント
岩本町駅から徒歩2分に位置し、秋葉原駅も徒歩圏内と複数路線が利用できる駅が徒歩圏内にあります。都心部への移動がしやすく、日常のアクセス面でも落ち着いた使い勝手が感じられる立地です。空調は個別方式を採用しています。男女別トイレが備えられている点も実用面で安心感があります。立地と基本設備のバランスを重視した検討がしやすい印象です。