日伸ビル

情報更新日:2026年05月22日
物件名
日伸ビル
所在地
東京都千代田区岩本町1-3-2
アクセス
都営新宿線 岩本町駅 徒歩4分
山手線 神田駅 徒歩5分
日比谷線 小伝馬町駅 徒歩5分
竣工年月
1988年10月
規模
地上9階

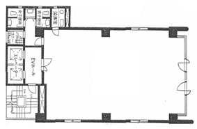
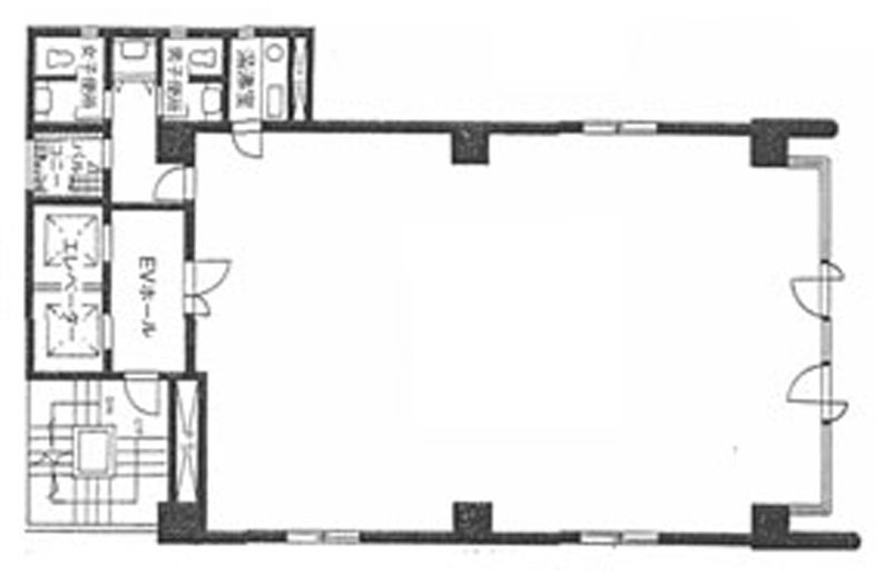
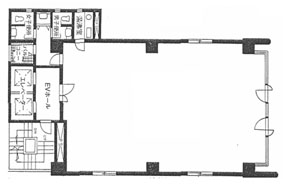
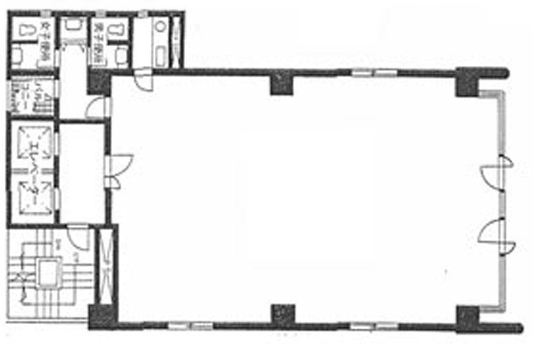
フォトギャラリー

間取り 区画 面積 賃料
(管理費含)
保証金・敷金 入居日 用途仕様
3 40
16,000円/坪
640,000円(税別)
8ヶ月 即入居可能 事務所
タイルカーペット
1B 12.74
要問合せ 要問合せ 要問合せ 事務所
タイルカーペット
2 16.31
要問合せ 要問合せ 要問合せ 事務所
タイルカーペット
4 40
要問合せ 要問合せ 要問合せ 事務所
タイルカーペット
5 40
要問合せ 要問合せ 要問合せ 事務所
タイルカーペット
7 40
要問合せ 要問合せ 要問合せ 事務所
タイルカーペット
8 40
要問合せ 要問合せ 要問合せ 事務所
タイルカーペット

貸室面積合計 40

※複数の貸室合計も表示されます。

お電話でのお問い合わせ

03-6278-5609

平日9:00 ~ 18:00(土日祝除く)

STEP 1
お問い合わせ・ご相談
STEP 2
現地見学
STEP 3
ご契約・お手続き
STEP 4
引き渡し・運用サポート

近隣情報

郵便局
日本橋本町郵便局
東京都中央区日本橋本町4-14-2
銀行
三菱UFJ銀行 神田駅前支店
東京都千代田区神田鍛冶町3-6-3

物件概要

基準階坪数
40坪
耐震
対応済み

※1981年6月1日以降に確認申請された建物は新耐震基準に該当しますが、当サイトでは原則として1982年6月1日以降に竣工した物件を新耐震として表記しています。

設備詳細

空調
個別空調
トイレ
男女別
エレベーター
2基

主な入居テナント

  • 株式会社オオダン
スタッフコメント
都営新宿線「岩本町」駅から徒歩4分、神田駅や小伝馬町駅も徒歩圏内で利用でき、複数路線を活用しやすい立地です。空調は個別方式を採用し、執務スタイルに応じた柔軟な調整が可能です。男女別トイレやエレベーター2基を備え、フロア利用時の動線にも配慮された構成となっています。交通利便性と実用性のバランスが取れた、安定した業務拠点として検討しやすい一棟です。