植松ビル

情報更新日:2026年05月22日
物件名
植松ビル
所在地
東京都中央区銀座7-8-5
アクセス
銀座線 銀座駅 徒歩3分
銀座線 新橋駅 徒歩4分
竣工年月
1960年01月
規模
地上10階 / 地下1階

フォトギャラリー

間取り 区画 面積 賃料
(管理費含)
保証金・敷金 入居日 用途仕様
6 50
28,500円/坪
1,425,000円(税別)
12ヶ月 即入居可能 事務所
タイルカーペット
B1 33
要問合せ 要問合せ 要問合せ 店舗
タイルカーペット
4 50
要問合せ 要問合せ 要問合せ 事務所
タイルカーペット
5 50
要問合せ 要問合せ 要問合せ 事務所
タイルカーペット
7 50
要問合せ 要問合せ 要問合せ 事務所・店舗
タイルカーペット
8 50
要問合せ 要問合せ 要問合せ 事務所・店舗
タイルカーペット
9 50
要問合せ 要問合せ 要問合せ 事務所
タイルカーペット

貸室面積合計 50

※複数の貸室合計も表示されます。

お電話でのお問い合わせ

03-6278-5609

平日9:00 ~ 18:00(土日祝除く)

STEP 1
お問い合わせ・ご相談
STEP 2
現地見学
STEP 3
ご契約・お手続き
STEP 4
引き渡し・運用サポート

近隣情報

郵便局
銀座みゆき通郵便局
東京都中央区銀座6-8-3
銀行
三菱UFJ銀行 銀座支店
東京都中央区銀座8-9-1

物件概要

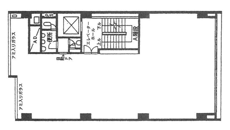
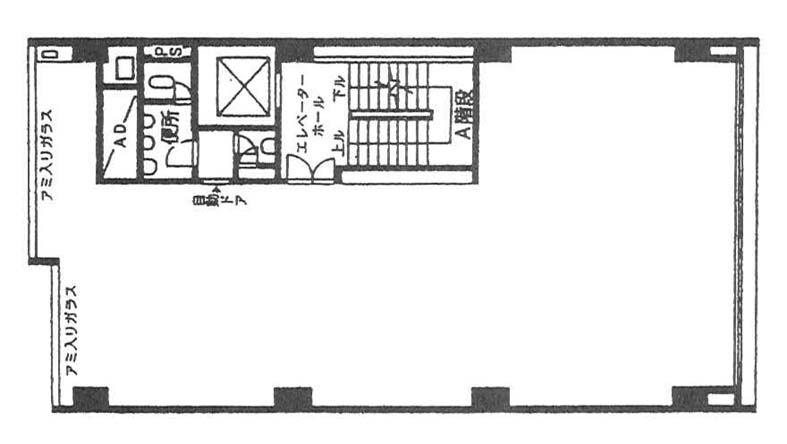
基準階坪数
50坪
耐震
未対応

※1981年6月1日以降に確認申請された建物は新耐震基準に該当しますが、当サイトでは原則として1982年6月1日以降に竣工した物件を新耐震として表記しています。

設備詳細

空調
個別空調
トイレ
男女別
エレベーター
1基

主な入居テナント

  • 株式会社アベジュエリー
  • 中町誠法律事務所
  • ピアジェ 銀座本店
  • 銀座HALクリニック
スタッフコメント
中央区銀座7丁目の「植松ビル」は、銀座のメインストリートである中央通りに位置し、銀座線「銀座」駅徒歩3分、銀座線「新橋」駅徒歩4分の好立地です。個別空調、男女別トイレ、エレベーター、機械警備を備え、24時間使用可能。銀座らしい商業・業務機能が集積するエリア特性を活かし、立地を重視したオフィス利用を検討しやすい物件です。